La Gerencia de Urbanismo del Concello de Vigo concedió el pasado mes de octubre licencia de obra al Consorcio Casco Vello de Vigo (CCVV) para reformar y rehabilitar los edificios situados en los números 8-10-12 y 14 de la rúa Alta, a un paso de la rúa Elduayen.
Y este martes, día 30 de diciembre, el organismo autonómico acaba el año con una buena noticia tras la celebración de su 20 aniversario el pasado 4 de diciembre. Una de sus principales obras, que está dentro del Plan de Actuación aprobado hasta 2030, da un paso relevante con la licitación de la obra por un importe de 1.570.754,76 euros (IVA incluido).
Las empresas interesadas en ejecutar este contrato tienen de plazo hasta el 31 de enero para presentar sus ofertas, tratándose así de una actuación que, sin duda, dará una nueva imagen a un viejo ‘agujero’ que lleva años abandonado en la zona media del Casco Vello y muy cercana a la rúa Elduayen.
Lo que se ofrece no es menor ya que los trabajos suponen una ambiciosa actuación en un reducido espacio puesto que se actuará en una parcela unificada de unos 170 metros cuadrados. En ella se prevé levantar un nuevo complejo residencial de vivienda colectiva con 5 pisos, siendo dos de ellos con tipología dúplex y ofreciendo la posibilidad de un pequeño jardín privado.
Se deberá seguir el proyecto redactado por el arquitecto Francisco Javier Vázquez Fernández, revisado en este año 2025, y que prevé un plazo de ejecución de 12 meses.
Se actuará en una parcela que, en la actualidad, se encuentra vacía y con vegetación para dar paso a un bloque residencial compuesto por planta baja y sótano, dos plantas y una tercera con bajo cubierta, donde estarán los pisos tipo dúplex. En total, la superficie total construida será de 734,55 m2 además de manejar 16,40 m² de balcones y patio así como 22,90 m² más de zona abierta ajardinada.
Las viviendas tendrán uno, dos o tres dormitorios en función de la superficie. De hecho, uno de los pisos tendrá 81,70 metros cuadrados, otro 107,20 m2, habrá dos viviendas con 132,10 m2 y una última con 104,90 m2. A mayores, contarán con trasteros y zona abierta, bien a través de balcones, patio o zona ajardinada.
Por plantas y viviendas
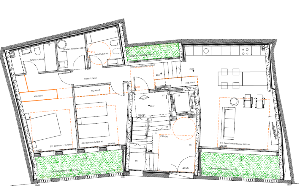
Más en detalle, la distribución del nuevo inmueble ofrecerá un área de sótano, donde se ubicarán los armarios de instalaciones y trasteros. A mayores, en la planta baja, además del portal de acceso, con escalera y ascensor, se configura una de las viviendas más ‘apetitosa’ y llamativa ya que tendrá 104,90 metros cuadrados de superficie construida, a los que se sumarán casi 23 m2 de jardín privado.
De hecho, se proyecta como una vivienda «que ofrece un programa de tres estancias» con dos dormitorios y que «se apoya en la cualificación espacial» de dos jardines -de «carácter seco o japonés», especifica el proyectista- que estarán situados entre el piso y la calle pero «garantizando» las exigencias de privacidad.
Esto, unido al otro pequeño jardín – patio interior ubicado en la zona posterior del futuro complejo residencial permitirá «una mayor riqueza del espacio habitable de la vivienda». Se completa con dos baños, vestíbulo-recibidor, sala de estar con comedor y cocina así como sala de almacenaje y zona de lavadero y tendedero.

Mientras, en las plantas 1ª y 2ª se proyectan sendas viviendas por planta con tres estancias y dos dormitorios de características similares pero que, como se matiza en el documento proyectado, «permiten la opción de generar una cuarta estancia: sala polivalente, estudio, segundo estar o nuevo dormitorio».
Serán de los pisos más amplios con 132,10 m2 de superficie construida además de disponer de varios balcones. Y su distribución se completa también con dos baños, vestíbulo-recibidor, sala de estar con comedor y cocina, sala de almacenaje, zona de lavadero y tendedero así como la posibilidad de una sala «polivalente».

En la planta tercera se desarrollarán las dos viviendas tipo dúplex que se complementarán con los espacios del bajo cubierta.
Así, la vivienda 3ºA en dúplex, será la más grande ya que tendrá cuatro estancias con tres dormitorios en una superficie construida total que llegará a los 107,20 m2, a los que se sumará el espacio del patio interior (7,10 m2). Se completará con vestíbulo-recibidor, dos baños, sala de estar, comedor, cocina además de zona de almacenaje y lavadero.
Mientras, la vivienda 3ºB será más pequeña pero mantendrá la esencia de las dos plantas de la tipología dúplex. Eso sí, contará con un dormitorio y tendrá una superficie total construida de 81,70 metros cuadrados. Un baño, un aseo, vestíbulo-recibidor, sala de estar-comedor y cocina además de zona de lavandería completarán el ‘coqueto’ piso.

Y como curiosidad en estas dos viviendas, se marca que la zona baja de los dúplex se ofrece al exterior «con un volumen acristalado a modo de galería para recoger el máximo de luz y siguiendo las indicaciones del Pepri», reza el proyecto.
Zonas comunes y «grieta» para iluminar
A las viviendas se accederá desde un «volumen central», en el que se establece el portal, las comunicaciones verticales y los espacios comunes. Pero el diseño marca que dicho acceso estará «iluminado» por una pequeña “grieta” en las plantas baja, 1ª y 2ª o patio -en planta 3ª- que se abrirá al exterior por encima de la edificación colindante».
Esta solución permitirá la entrada de iluminación natural y ventilación cruzada, con el objetivo de, como apunta el arquitecto redactor del proyecto, servir de «rótula y transición» entre los dos volúmenes laterales que están situados a dos cotas ligeramente diferenciadas.
Por último, detalla que las viviendas que se desarrollan en una sola planta, la zona de noche y de servicios, se sitúa en el volumen de la izquierda mientras que la zona de día se localiza en el volumen de la derecha, proyectándolo así como «un gran espacio de uso y distribución flexible casi a modo de ‘loft’ o gran espacio sin tabiquería».
Esto es lo que permitiría dicha polivalencia en algunas estancias que, en algún caso, se podrían «llegar a separar» ofreciendo la posibilidad de nuevas estancias en los pisos de las plantas 1ª y 2ª.






















